Capannone in affitto

Marcon, Via Lorenzo Perosi - Boschette
6 locali 6 locali
1600 Mq 1600 Mq
6 bagni 6 bagni

Capannone in affitto

Marcon, Via Lorenzo Perosi - Boschette

Descrizione annuncio

MARCON_ Proponiamo in vendita Capannone la posizione risulta particolarmente vantaggiosa nelle immediate vicinanze del centro commerciale “Valecenter”, comodissimo alla tangenziale che permette di raggiungere facilmente sia l’autostrada E55 che il centro di Mestre e Venezia centro storico. L'ubicazione dello stabile, garantisce inoltre di raggiungere in pochi minuti sia il centro di Marcon che la zona industriale di Gaggio, oltre alla presenza di negozi, supermercati, ristoranti, bar.

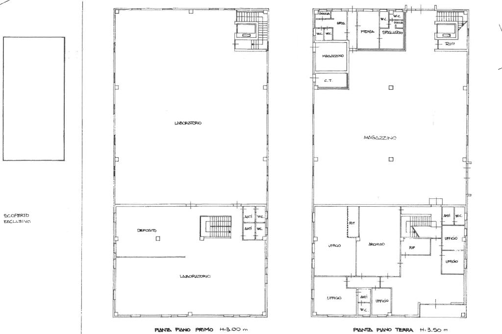
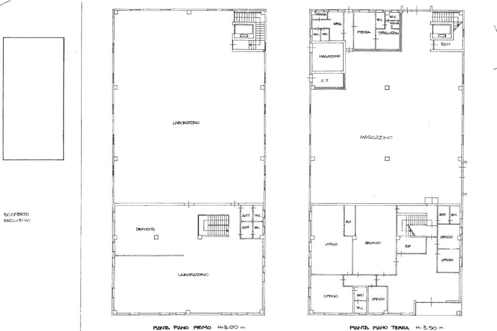
L’immobile costruito nel 1990 è all’interno di un lotto privato di 3600mq per una superficie dell’edificio pari a 1600mq circa distribuiti su due piani.

Attraverso il portico d’ingresso al piano terra si accede in quella che ora è adibita a reception, da cui si accede a tutti gli ambienti direzionali dell’immobile, composto da: 4 uffici, una sala riunioni, due bagni finestrati con antibagno; successivamente passando per il disimpegno ci troveremo nella zona stoccaggio dotata di doppio ingresso per lo scarico di grossi mezzi, zona mensa, spogliatoi, ufficio logistica e due bagni con doccia finestrati. Il primo piano, raggiungibile tramite 2 scale interne o l’ascensore, è composto da due laboratori di grandi dimensioni, un deposito e due bagni finestrati.

La soluzione è ideale per chi ha bisogno di un immobile in zona comoda, strettamente commerciale, con ampi spazi di lavoro e di produzione e con la possibilità di ampliare l’edificio in base alle proprie esigenze

Mostra tutto

Nelle vicinanze

Trasporto pubblico Trasporto pubblico
Gaggio Porta Est
Gaggio Porta Est
1,3 Km
Viale Trento e Trieste - Cavalcavia Autostrada
Viale Trento e Trieste - Cavalcavia Autostrada
210 m
Via Dello Sport - Impianti Sportivi
Via Dello Sport - Impianti Sportivi
400 m
Ricariche auto elettriche Ricariche auto elettriche
EnelX Fast EVA+ Marcon
960 m
Valecenter Gaggio
1,3 Km
Scuole Scuole
Scuole
620 m
G. Marconi
830 m
Don Milani
1,3 Km
Farmacia Farmacia
Farmacia Comunale Gaggio
670 m
Zambello
830 m
Farmacia di Marcon
1,2 Km
Farmacia Polato
2,6 Km
Farmacia Piva
3,0 Km
Ospedali Ospedali
Ospedali
3,0 Km
Supermercati Supermercati
Penny Market
710 m
Coopca
900 m
Aldi
940 m
Iperalimentare Rossetto
1,3 Km
Negozi Negozi
Bortolato
820 m
Bar Bar
Grillo
820 m
Bar Light
840 m
Ristoranti Ristoranti
Al Toro
2,5 Km
Ristorante bar pizzeria "Hosteria Venexiana"
2,9 Km
Mostra tutto

Caratteristiche

Rif.:
61130753
Piano:
1 di 2 con ascensore (Piano su più livelli)
Posti auto:
8
Condizionamento:
Autonomo
Ascensore:
Riscaldamento:
Autonomo
Mostra tutto
Prezzo Prezzo
€ 3.900 / mese
Anche in vendita a

Classe Energetica

F
F
F
F
F
F
F
F
F
Anno di costruzione:
1990
Riscaldamento:
Autonomo
Tipo impianto:
Ad aria
Tipo alimentazione:
Aria

Ti interessa visionare l'immobile?

Fissa un appuntamento  Fissa un appuntamento

Richiedi informazioni

Clicca su Leggi per aprire l'informativa
* Questi campi sono obbligatori
Affiliato
Tespe Snc
Via Sestiere Castello, 5758 30124 Venezia (VE)

Il nostro staff


  • Marco Carminati
    Affiliato
Via Sestiere Castello, 5758 30124 Venezia (VE)
Zona: Venezia - Lido - Mestre
Mostra su mappa
Orari: Lunedì - Venerdì dalle 9.00 alle 19:00 - Sabato dalle 9.00 alle 13.00
Affiliato
Tespe Snc
Via Sestiere Castello, 5758 30124 Venezia (VE)

2026 Tecnocasa Franchising S.p.A. - P. IVA 08365160152 - Via Monte Bianco 60/A 20089 Rozzano (MI). Ogni agenzia ha un proprio titolare ed è autonoma. Privacy policy | Policy utilizzo | Cookie policy