Complesso in vendita

Venezia, Via Terraglio - Carpenedo
€ 500.000
6 locali 6 locali
500 Mq 500 Mq
2 bagni 2 bagni

Complesso in vendita

Venezia, Via Terraglio - Carpenedo

Descrizione annuncio

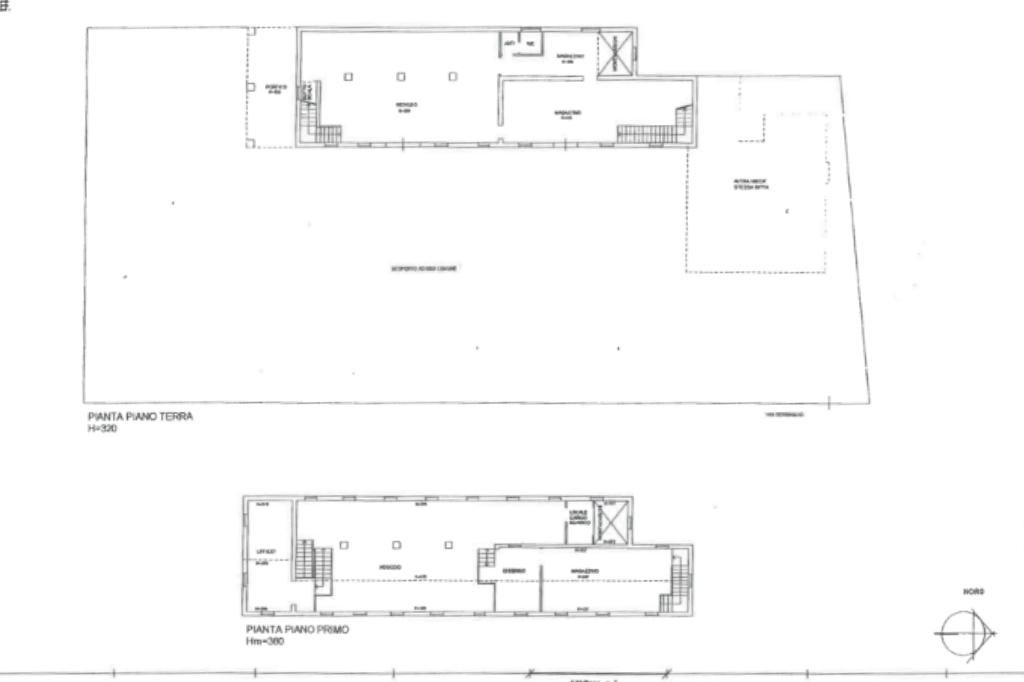
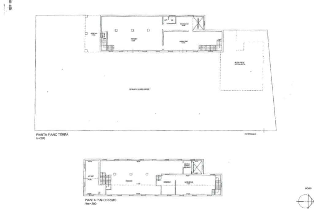
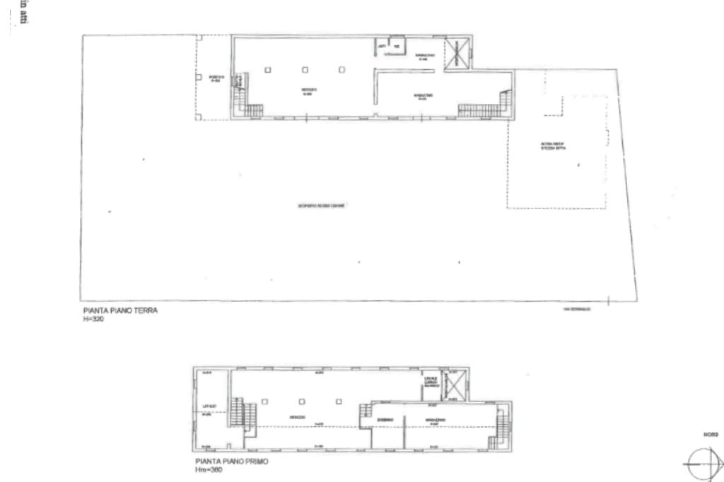
MESTRE TERRAGLIO_ L'edificio in oggetto degli inizi '900 è ubicato in via Terraglio, zona molto comoda sia per il passaggio di mezzi pubblici che per la vicinanza all'autostrada e alle principali arterie che collegano Mestre alla zona di Treviso e all'aereoporto.

L’immobile accatastato come D/8, di 480 mq complessivi, si sviluppa su due livelli: al piano terra si trovano spazi facilmente utilizzabili come uffici o reception, oltre a un ampia zona scoperta adibita a parcheggio, mentre al primo piano si apre un enorme open space, arricchito da due aree rialzate ideali come magazzini o uffici privati, il tutto ristrutturato negli anni '90. Grazie alle verifiche urbanistiche, questo fabbricato può essere trasformato in residenziale, offrendo la possibilità di creare appartamenti, loft moderni, studi professionali o un mix di funzioni; un volume importante che in passato ospitava una rivendita di moto.

Accanto sorge una villa del '700, con una superficie di 251 mq, conserva il carattere autentico delle dimore d’epoca e si sviluppa su tre livelli, acquistabile a una cifra pari a Euro 250.000,00

L’intera proprietà si presta sia a chi cerca una residenza di prestigio con ampi spazi complementari, sia a chi desidera sviluppare un interessante progetto immobiliare, sfruttando la presenza dell’immobile commerciale convertibile. La posizione, la visibilità e le dimensioni generose rendono questo complesso una rarissima opportunità per chi desidera unire storia, potenzialità architettoniche e flessibilità d’uso.

Mostra tutto

Nelle vicinanze

Trasporto pubblico Trasporto pubblico
stazione di Venezia Mestre Ospedale
stazione di Venezia Mestre Ospedale
2,7 Km
stazione di Mogliano Veneto
stazione di Mogliano Veneto
3,0 Km
Terraglio Gatta
Terraglio Gatta
20 m
Via Gatta 9/9
Via Gatta 9/9
50 m
Scuole Scuole
Scuola primaria Carlo Collodi
780 m
Scuola primaria Giuseppe Verdi
2,0 Km
Scuole
2,1 Km
Scuola primaria Diego Valeri
2,2 Km
Scuola Media Umberto Saba
2,4 Km
Farmacia Farmacia
Farmacia Piumelli
560 m
Farmacia Comunale
660 m
Farmacia San Marco
2,1 Km
Farmacia Villa
2,9 Km
Farmacia alla Marca
2,9 Km
Ospedali Ospedali
Ospedali
1,0 Km
Pronto Soccorso Ospedale dell'Angelo
2,6 Km
Ospedale dell'Angelo
2,8 Km
Supermercati Supermercati
Aldi
2,1 Km
Coop&Coop
2,2 Km
Coop
2,2 Km
Cadoro
2,3 Km
Supermercato Cadoro
2,6 Km
Negozi Negozi
Kiabi
2,1 Km
Cisalfa
2,1 Km
Maggiotto Abbigliamento
2,5 Km
Panificio Falcon
3,0 Km
Bar Bar
Bar alla Quercia
940 m
Bar
2,2 Km
Dapino
2,3 Km
Bar Alle Stelle
2,6 Km
Bar Lo Spuntino
2,8 Km
Ristoranti Ristoranti
Il Nottambulo
650 m
Ristorante pizzeria Nuova Favorita
1,2 Km
Al segnavento
1,8 Km
Osteria il Granchio
1,8 Km
Ristoranti
2,0 Km
Mostra tutto

Caratteristiche

Rif.:
61153575
Piano:
2 di 2 con ascensore (Piano su più livelli)
Box:
2
Posti auto:
20
Balconi:
1
Condizionamento:
Assente
Mostra tutto
Prezzo Prezzo
€ 500.000
Rata mutuo Rata mutuo
€ 2.356 / mese
Proponi il tuo prezzoProponi il tuo prezzo

Altre caratteristiche

Descrizione dei locali
Bagno Con Finestra

Classe Energetica

G
G
G
G
G
G
G
G
G
Anno di costruzione:
1700
Riscaldamento:
Autonomo
Tipo impianto:
A radiatori
Tipo alimentazione:
Metano

Ti interessa visionare l'immobile?

Fissa un appuntamento  Fissa un appuntamento

Richiedi informazioni

Clicca su Leggi per aprire l'informativa
* Questi campi sono obbligatori

Calcola il tuo mutuo

Semplice e senza impegno
Anticipo

( % )
Mutuo

( % )

pochi semplici passi

inserisci i tuoi dati
Questionario completato
Grazie per aver richiesto un appuntamento senza impegno con un nostro Consulente del Credito e Assicurativo.

Hai inserito correttamente tutti i dati necessari e a breve riceverai una e-mail con un link da convalidare per inviare i tuoi dati.
Affiliato
Tespe Snc
Via Sestiere Castello, 5758 30124 Venezia (VE)

Il nostro staff


  • Marco Carminati
    Affiliato
Via Sestiere Castello, 5758 30124 Venezia (VE)
Zona: Venezia - Lido - Mestre
Mostra su mappa
Orari: Lunedì - Venerdì dalle 9.00 alle 19:00 - Sabato dalle 9.00 alle 13.00
Affiliato
Tespe Snc
Via Sestiere Castello, 5758 30124 Venezia (VE)

2026 Tecnocasa Franchising S.p.A. - P. IVA 08365160152 - Via Monte Bianco 60/A 20089 Rozzano (MI). Ogni agenzia ha un proprio titolare ed è autonoma. Privacy policy | Policy utilizzo | Cookie policy